

Immeuble R+1 pour usage d’habitation
de 345 m2 d’emprise au sol.
Deux appartements par palier
-RDC un appartement de 3 chambres cuisine douches pour le propriétaire et un autre appartement de 02 chambres cuisines douches pour le locataires.
-R+1 02 appartements de 02 chambres cuisine douche
NKOABANG-CAMEROUN





Villa d’une superficie de 452 m2 au sol au Cameroun dans la ville de Mfou. Au RDC un salon d’honneur, un séjour, une salle à manger, une chambre visiteur avec dressing et salle de bain, une cuisine, un garage de 3 voitures, et un WC visiteur. A u R+1 un séjour privé, 03 chambres adultes, une chambre enfans de 03 lits, et une autre chambre enfants 02 lits.



Projet d'une emprise au sol de 285 m2 composé de 4 chambres, un séjour+espace bar+espace bibliothèque, une salle à manger, d'une grande cuisine.

Vue extérieure arrière


Vue extérieure 1
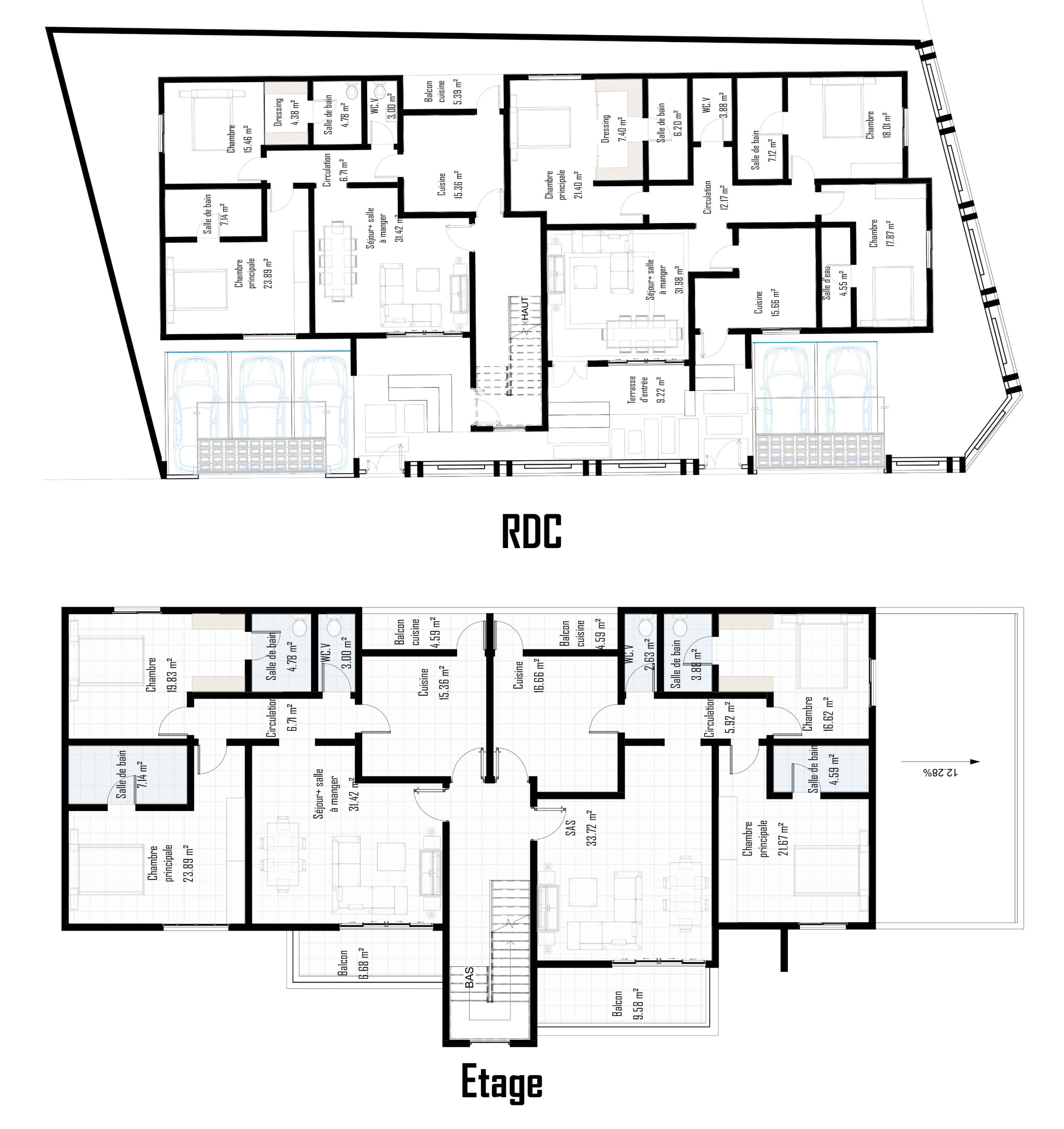
Projet d'une emprise au sol de 345 m2.
Deux appartements par palier
-RDC un appartement de 3 chambres,cuisine, douches pour le propriétaire et un autre appartement de 02 chambres cuisines douches pour le locataires.
-R+1 02 appartements de 02 chambres cuisine douche

Vue extérieure 2

Intérieur séjour appartement propriétaire

Intérieur cuisine vue 2
Début chantier


Intérieur cuisine vue 1

Intérieur chambre principale propriétaire
Avancement des travaux le 21/10/2024

Vue extérieure 1
Projet d'une emprise au sol de 426 m2.
Deux appartements par palier
-RDC un appartement de 4 chambres,cuisine, douches pour le propriétaire et un autre appartement de 02 chambres cuisines douches pour le locataires.
-R+1 02 appartements de 02 chambres cuisine douche

Vue extérieure 2

Exécution fondation vidéo 1
Exécution fondation vidéo 2
Exécution fondation vidéo 3
Exécution fondation vidéo 4
Elevation RDC
Avancement des travaux
Avancement travaux le 21/11/2024